Welcome to the perfect family home—backing onto beautiful green space with no neighbours in front or behind! Located in the family friendly neighbourhood of Taradale with multiple schools within the community, this property offers the ideal blend of comfort, privacy, and convenience.
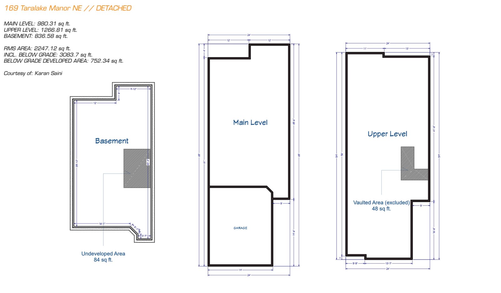
Step inside to an open and inviting floor plan featuring 6 bedrooms and 4.5 bathrooms, including two master suites on the upper level. The main master offers a luxurious 5-piece ensuite, while the second master includes its own 4-piece ensuite—perfect for multi-generational living. With 4 bedrooms upstairs, this layout truly caters to growing families.
The home...
