The Perfect Family Home in New Brighton!
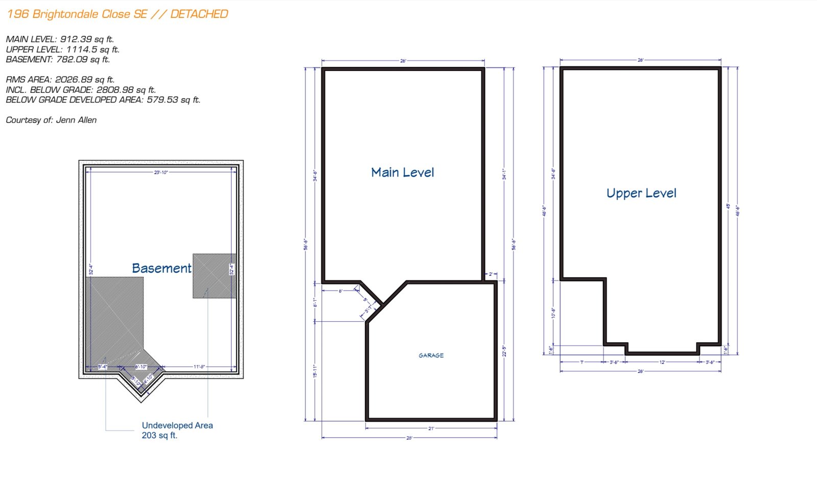
Looking for a home that grows with your family? Welcome to this warm and welcoming detached home in family-friendly New Brighton, offering over 2,600 sq ft of developed living space and nearly 5,000 sq ft of yard to play, garden, or entertain. Why Families Love It Here: 3 spacious bedrooms + 2.5 bathrooms – perfect for kids, guests, or that much-needed home office. Walk-through pantry from the garage – unload groceries with ease and keep everything organized. Bright, open-concept main floor – great sightlines to keep an eye on little ones while cooking or relaxing. Double attached ...
 
    