About the Property
Ever dreamed of a home that’s classy enough for dinner parties, comfy enough for sweatpants, and smart enough to never make you hang Christmas lights again? Welcome to your new favourite chapter — where elegance meets low-maintenance brilliance in Hawkwood Estates.
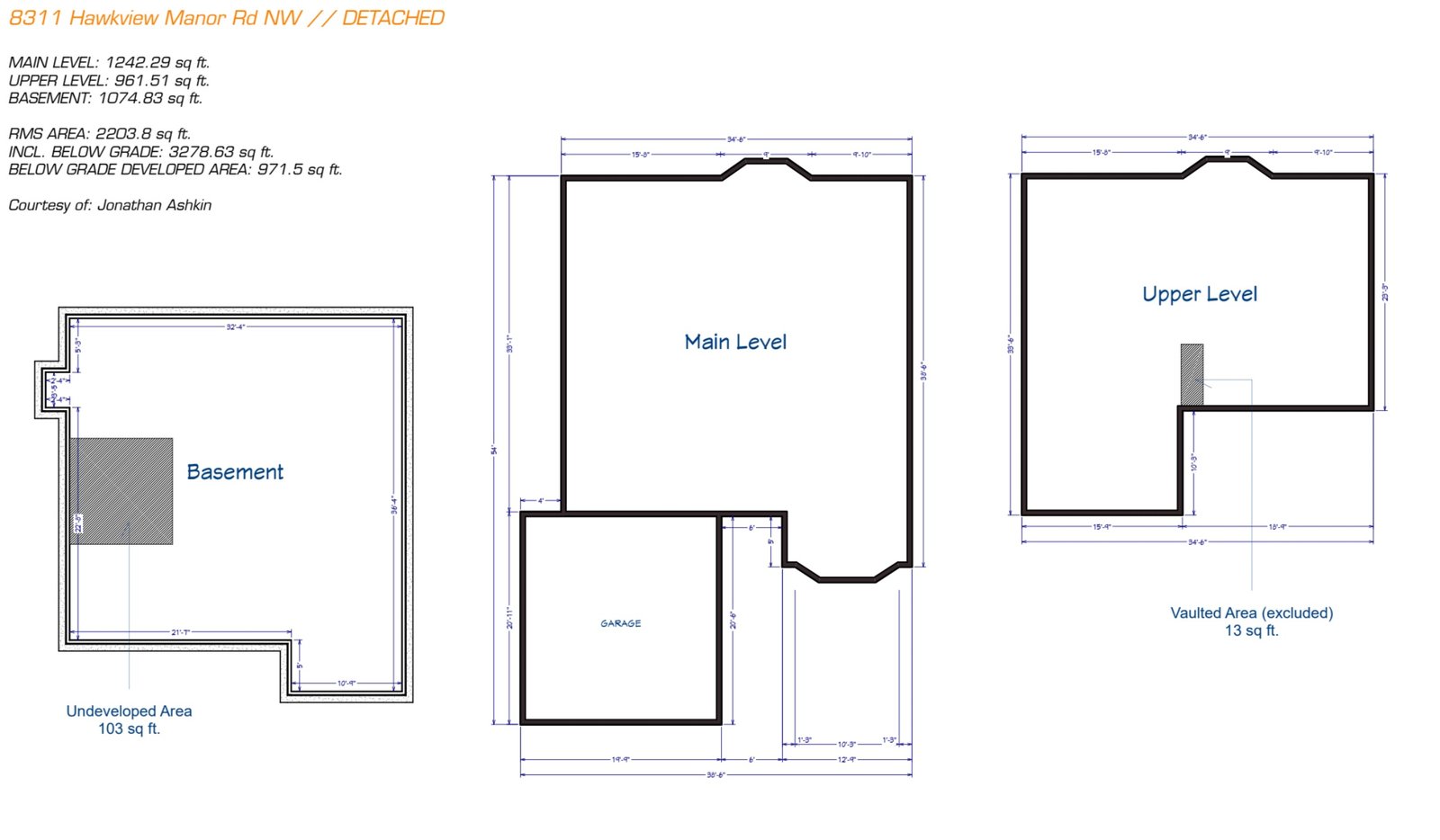
Step inside this refreshingly spacious home offering almost 3300 SqFt of developed living space, where the bedrooms are so big you might lose a laundry basket in them (on purpose). The kitchen delivers serious chef vibes with veined quartz counters, built-in stainless steel appliances, and lighting so good even your takeout looks gourmet.
The primary ensuite? A five-star spa escape — complete with heated floors, a freestanding tub, and a shower boasting three shower heads (because two just isn’t enough). Downstairs, the fully finished basement invites both binge-watchers and cocktail shakers with a cozy living area, wet bar, and an accessible tile shower for your guests.
Outside, you’ll find a large composite deck, a private 6,700 SqFt lot framed by mature trees, and Gemstone exterior lighting that handles the holidays for you. Perfectly located near schools, parks, Crowfoot Crossing, and the LRT — this home truly lets you have it all (minus the string lights and cramped closets).
Upgrades include: High efficiency furnace (~2015), New water tank (2024), New asphalt shingle roof (~2020), New vinyl plank flooring throughout the main level and new carpet upstairs, Newer windows upstairs and on main level, Pot lights added through main level (~2020)