About the Property
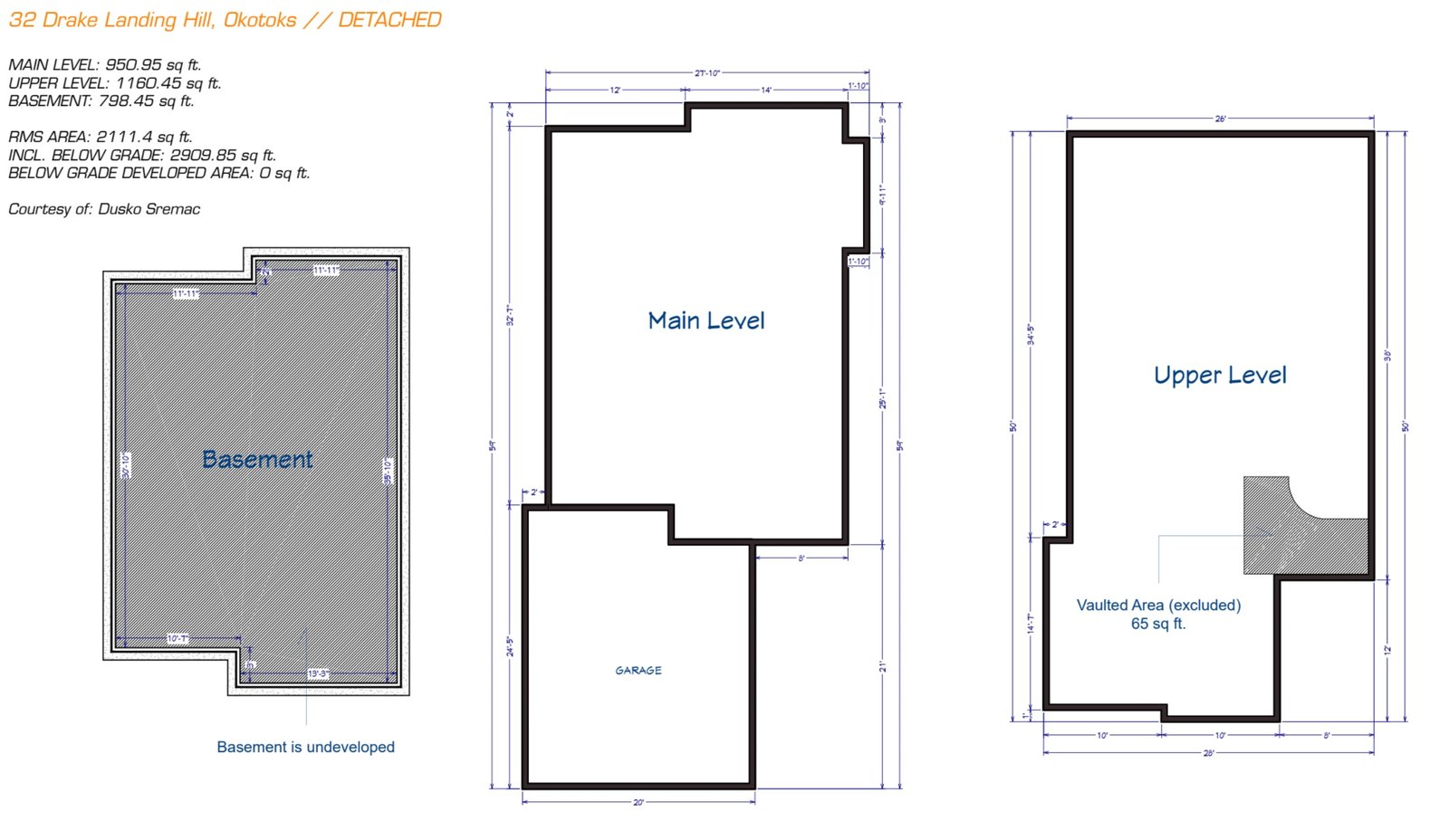
Tucked away on a quiet cul-de-sac in Drake Landing, this family-friendly two-storey backs directly onto a greenspace and playground — the kind of backyard setup that’s hard to beat. With 3 bedrooms, 2.5 bathrooms, and over 2,100 sq. ft. of space, this home was made for growing families who want room to breathe and space to gather.
The front entry offers plenty of room to drop bags and shoes without feeling crowded. The kitchen features granite counters, rich wood cabinetry, and a large central island with seating — perfect for everything from rushed breakfasts to weekend baking. The dining area flows into a bright, open living room with a cozy gas fireplace, and right off the dining space is access to your sunny south-facing backyard and deck — ideal for summer BBQs and casual evenings outside.
Need a home office or playroom? There’s a flex space on the main floor that works well for both, plus a powder room and a laundry-equipped mudroom that keeps life organized.
Upstairs, there’s a central bonus room, two well-sized bedrooms, a full 4-piece bathroom, and a spacious primary suite overlooking the backyard. The primary retreat includes a walk-in closet and a 5-piece ensuite with dual sinks, a soaker tub, and separate shower — a true spot to unwind.
The backyard is the real standout here: a large deck, room for a firepit or garden, and direct access to the park behind — no rear neighbours, just open space for the kids to run. It's the kind of location and layout that rarely come together in one package.