About the Property
Welcome to 2 Varston Place NW — a beautifully maintained detached home on a rare, nearly 9,000 sq ft corner lot backing onto a walking path in the heart of sought-after Varsity.
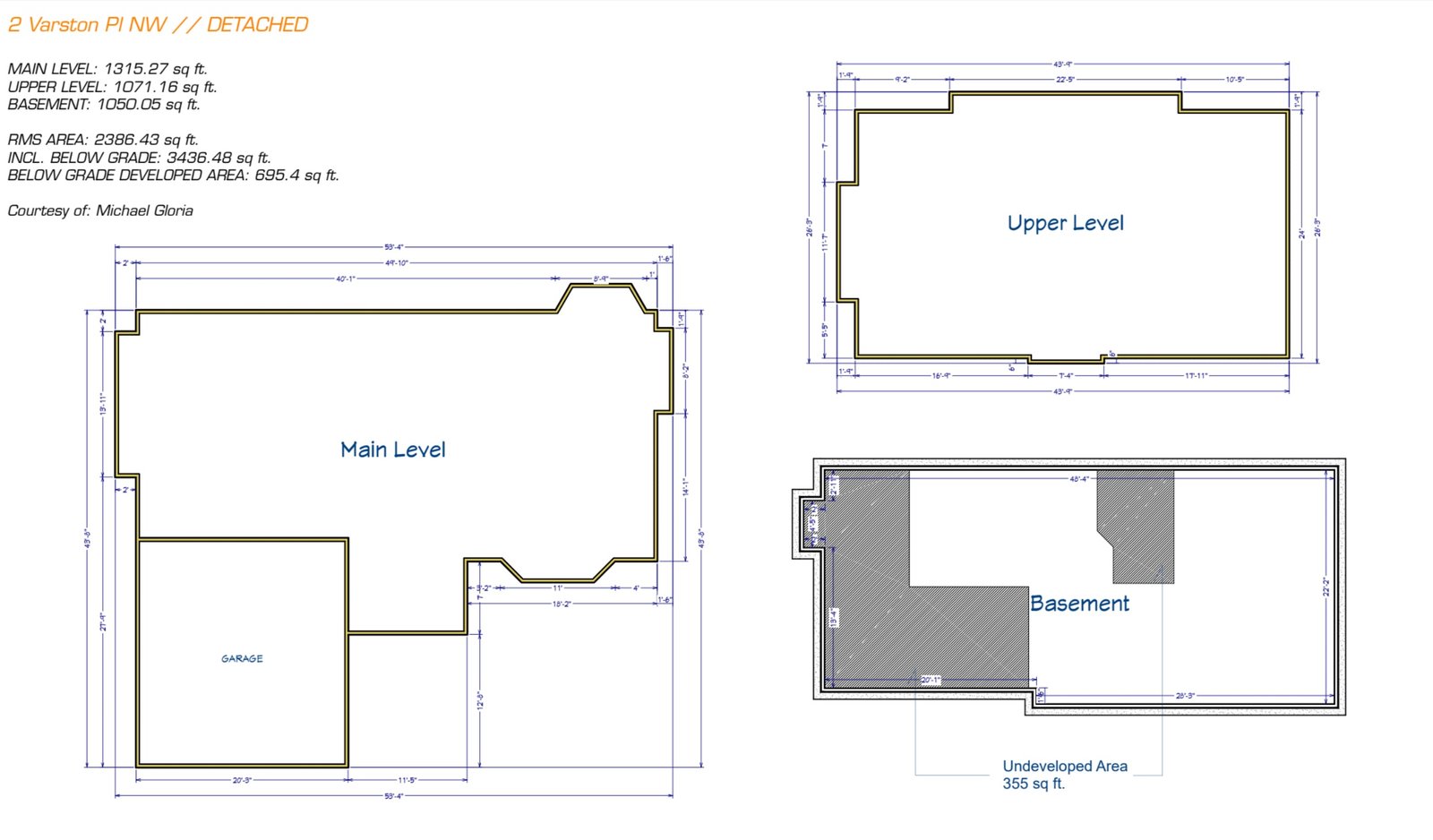
This spacious property offers just under 2,400 sq ft of living space with 3 bedrooms, 3.5 bathrooms, and a finished basement for added flexibility. Inside, you’ll appreciate the updated kitchen, Hardwood floors, new furnace, new on-demand hot water tank, many updated windows, and a bright, functional layout perfect for daily living and entertaining.
The outdoor space is truly special — enjoy a massive composite deck overlooking the charming wishing pond, surrounded by mature trees and lush low maintenancelandscaping. The yard backs directly onto a peaceful community walking path, adding to the serene setting.
Varsity is known for its top-rated schools, including Marion Carson Elementary with a mandarin immersion program, Varsity Acres French Immersion, St Vincent de Paul Catholic Elementary, F.E. Osborne Junior High, and Sir Winston Churchill High School. All this with Market Mall, the University of Calgary, Alberta Children’s Hospital, Foothills Medical Centre, parks, pathways, and transit just minutes away.
Don’t miss your opportunity to own this exceptional home on one of Varsity’s most desirable streets!